Passa alla navigazione Passare al contenuto Passa al Footer
IMG_6079

Lumisono ufficio fronte parco | Moscova

Num. imm.
LRE1267
Via
Via Giulianova
Numero civico
1
Superficie commerciale
100,00
Prezzo
4.166,00 €
Spese condominiali
330,00 €
Bagni
1
Piano
1
Ascensore
No
Condizione
Ottimo / Ristrutturato
Canna fumaria
No
Indice Prestazione Energetica kWh/m3 anno
175
Mostrare di più sul tema Descrizione

Descrizione

Per informazioni rapide e una comunicazione più diretta, scrivici su WhatsApp Business (+39 0287383443). Saremo felici di risponderti!

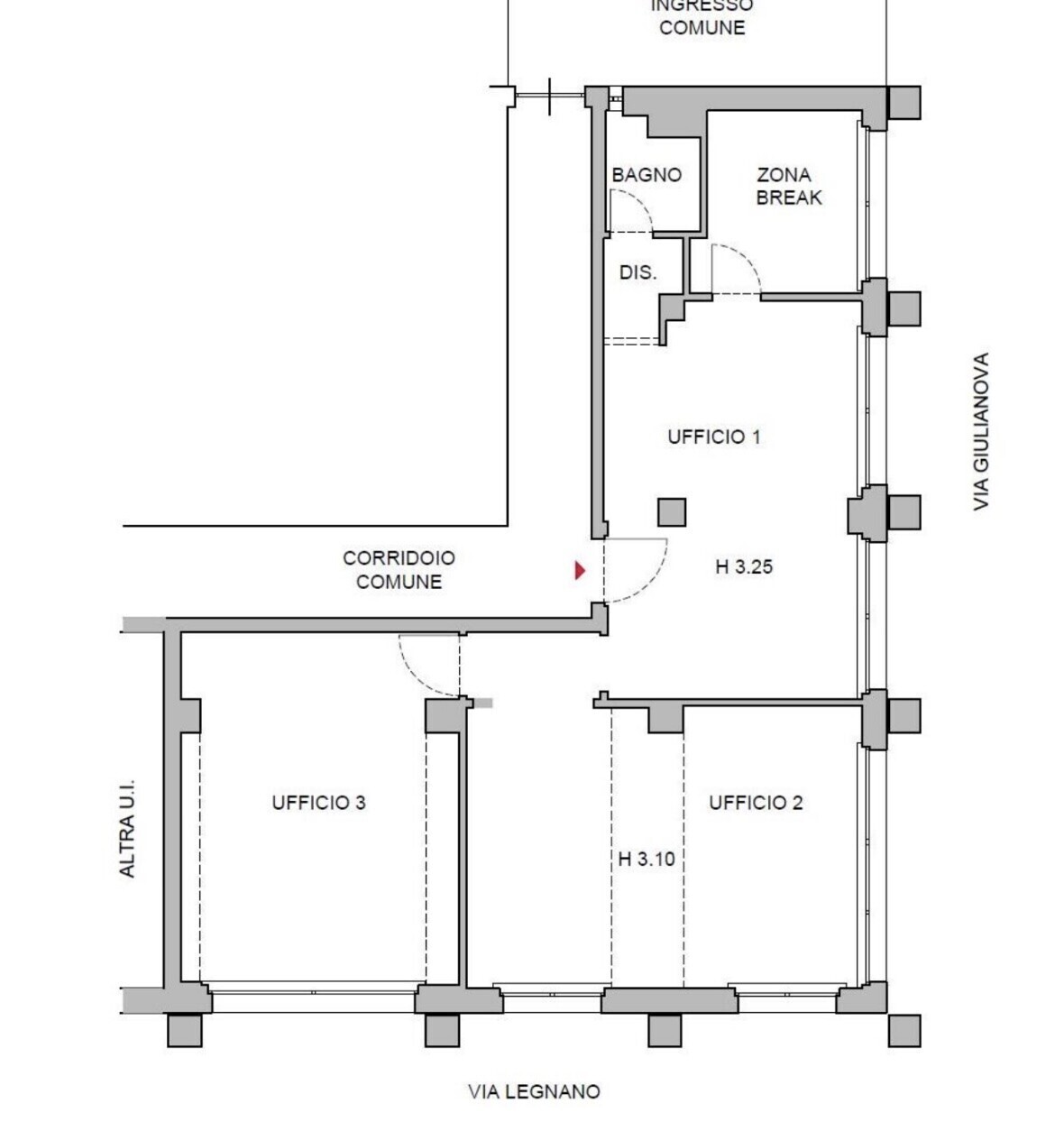
Proponiamo in locazione un ufficio di circa 100 m² con destinazione d’uso A/10, situato in contesto signorile e dotato di servizio di portineria.

L’immobile si compone di tre ampi locali, ideali per postazioni operative o sale riunioni, una comoda zona break e un bagno con antibagno. Gli ambienti, caratterizzati da un’altezza di 3,25 m, godono di ottima luminosità naturale grazie alle grandi finestre e alla favorevole doppia esposizione.

Completano la soluzione la possibilità di utilizzo di una cantina al piano interrato e, su richiesta, un box auto.

Il palazzo offre un servizio di portineria attivo dal lunedì al venerdì dalle 8:30 alle 13:00 e dalle 14:30 alle 17:00, e il sabato dalle 9:00 alle 11:00.

Soluzione ideale per studi professionali, società di servizi o realtà che necessitano di spazi funzionali in un contesto ben organizzato.

Disponibile da subito!
Mostrare di più sul tema Descrizione

Certificazione energetica

Certificazione energetica
Attestato di prestazione energetica (APE)
Classe energetica
Legge 90/2013, F

Referente dell’immobile

Altri immobili interessanti

Ufficio in Locazione | Via Spartaco

Num. imm.
S10-R10U
Motivo
Affitto
Tipo di immobile
Ufficio
Città
Milano
Locali
4
Superficie commerciale
108,00
Canone d'affitto
3.633,00 €

Ufficio di rappresentanza con terrazzo | Piazza Santa Maria Beltrade

Num. imm.
B2-R02-10-27
Motivo
Affitto
Tipo di immobile
Ufficio
Città
Milano
Locali
11
Superficie commerciale
511,00
Canone d'affitto
25.584,00 €

Ufficio di Rappresentanza | Via Spartaco

Num. imm.
S10-R01U
Motivo
Affitto
Tipo di immobile
Ufficio
Città
Milano
Locali
4
Superficie commerciale
162,00
Camere da letto
4
Canone d'affitto
4.040,00 €

Ufficio in affitto | Piazza Santa Maria Beltrade

Num. imm.
B2-R01U
Motivo
Affitto
Tipo di immobile
Ufficio
Città
Milano
Locali
3
Superficie commerciale
103,00
Camere da letto
2
Canone d'affitto
4.351,00 €

Quadrilocale ristrutturato |Piazza Santa Maria Beltrade

Num. imm.
B2-R10U
Motivo
Affitto
Tipo di immobile
Ufficio
Città
Milano
Locali
4
Superficie commerciale
121,00
Camere da letto
3
Canone d'affitto
4.546,00 €